top of page
산남다락
수원, 학교공간혁신

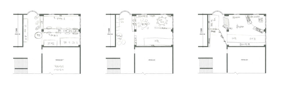
중앙 현관이나, 운동장 구령대 옆의 벤치 등 에서 아이들의 대기 및 휴식 장소의 부재가 관찰되었다. 학교 혁신공간으로 4층 복도를 선정하고, 4층 복도를 교실과 연계하여 만남, 놀이, 휴식을 하는 공간으로 디자인 워크샆을 통해 제안 받았다.
복도 주변에 아이들이 쉽게 접근 가능한 벤치, 테이블, 오두막 등을 배치하여 공간을 조성하고, 실내 암벽등반 공간을 마련하여 아이들을 위한 동적활동 공간 구성하고, 필요시 가변형 벽을 이용하여 대공간으로 활용가능회의실을 마련하여 회의 및 상담공간으로 활용가능하도록 했다.
건축개요
위치
수원시 영통구 매탄동
용도
교육연구시설(초등학교)
연면적
-
규모
교실 2실
대지면적
-
건축면적
-
사진
HOGA Architecture
bottom of page









